Polysan FLEXIA vanička z litého mramoru s možností úpravy rozměru, 170x100cm 72918
Kód: 72918Související produkty
Detailní popis produktu
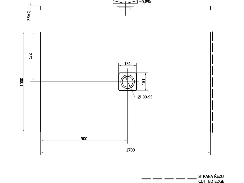
Soubory ke stažení:Tento rozměr má jednu ze stran řezanou, a tak není pohledová. Viz schéma, kde je tato strana označena.
Možnost úpravy rozměrů vaničky svépomocí dle přiloženého návodu. Úpravou rozměrů vaničky je zachována standardní záruka na výrobek.
Vanička z litého mramoru FLEXIA je pravým řešením zejména při výměně vany za sprchový kout. Elegantní design vaničky, ke které je na výběr sifon s krytkou ve třech barevných provedeních, dodá vašemu sprchovému koutu nezaměnitelný a originální vzhled.
- Konstrukce podlahy - vaničky umožňuje její instalaci i do zcela netypických prostor jako jsou kouty s výřezy, popř. do koutů nepravidelného tvaru (vaničky s úkosem)
- Sprchovou podlahu je možné řezem upravit na požadovaný rozměr. Řez podlahou FLEXIA musí být rovný (krácení, úkosy, výřezy), nelze řezat do rádiusu (oblouky). Požadavek na úpravu rozměru uvádějte zároveň s objednávkou vaničky.
- Příplatek za úpravu rozměru dle platného ceníku
- Čtvercové a obdélníkové vaničky nabízíme v šířce od 80 do 180 cm a v délce od 70 do 100 cm
- Čtvrtkruhové vaničky nabízíme v rozměrech 80x80 až 120x90 cm
- Vaničky lze instalovat s nožičkami; vhodný typ nožiček je uveden u každé vaničky.
- Standardní provedení v bílé barvě, možno objednat i barevné provedení dle vzorníku RAL za příplatek 30 % k základní ceně
Při zadávání rozměrů je důležité počítat s tolerancí na přesnost řezu. Sprchové podlahy FLEXIA jsou řezány na požadovaný rozměr na strojní formátovací pile s tolerancí ± 2 mm na metr řezu. Následný řez není pohledový.
Umístění otvoru na sifon je pevně daný a nelze ho změnit. Okolo sifonu je, vzhledem k pevnosti podlahy, doporučeno případný řez vést minimálně 15 cm od středu sifonu.
Z důvodu dilatace nedoporučujeme montáž vaniček pod obklad.
- Nutno objednat samostatně speciální sifon s krytkou. Na výběr je sifon s krytkou v nerezu, bílé, černé nebo zlaté matné barvě.
Na sprchové vaničky POLYSAN vyrobené z litého mramoru poskytujeme záruku 2 roky. Podmínkou záruky je správné usazení podle návodu.
Příklady atypického řezu:


Litý mramor - materiál s tepelně-izolačními vlastnostmi, které oceníte při každém doteku
Používá se pro výrobu sprchových vaniček, van, umyvadel i dalších produktů. Vyrábí se ze směsi mletého vápence, sklářského písku, polyesterové pryskyřice a barviv. Výrobky z litého mramoru se vyznačují vysokou pevností, nulovým průhybem, stabilitou a elegantním designem.
Doplňkové parametry
| Kategorie: | Na míru |
|---|---|
| Hmotnost: | 89 kg |
| EAN: | 8590729080718 |
| Balení: | 1 ks |
| Barva: | Bílá |
| Délka: | 1700 mm |
| Hmotnost: | 89 kg |
| Materiál: | Litý mramor |
| Průměr odpadu: | 90 mm |
| Rozměr: | 170x100x3,5 cm |
| Série: | FLEXIA |
| Šířka: | 1000 mm |
| Tvar: | Obdélníkové |
| Výška: | 35 mm |
| Záruční doba: | 2 roky |
| Balení - hmotnost: | 89.000 kg |
| Balení - šířka: | 1725 mm |
| Balení - tloušťka: | 1025 mm |
| Balení - výška: | 45 mm |




