Polysan LUCIS LINE obdélníkový sprchový kout 1200x800mm L/P varianta DL1215DL3315
Kód: DL1215DL3315Související produkty
Detailní popis produktu
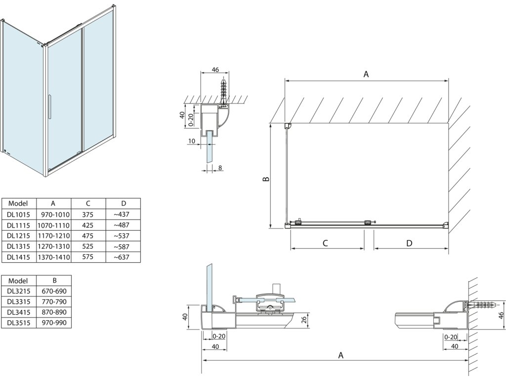
Soubory ke stažení:Posuvné sprchové zástěny LUCIS LINE představují špičku tohoto segmentu. Jejich nadstandardní 2 m výška přináší do sprchového koutu opticky více prostoru a světla. Hranaté profily a pouzdra kuličkových pojezdů poskytují sérii moderní vzhled. Nová konstrukce stěnových profilů umožňuje toleranci 20 mm v nastavení a ukrytí stavěcích šroubů, které jsou nyní přístupné pouze po odklopení zakrývací lišty. Horizontální těsnící profily jsou elegantně vsazeny do hliníkových profilů a tím je výrazně prodloužena jejich životnost. Dlouhá a štíhlá decentní madla podtrhují jedinečnost a design této série.
Celková charakteristika sprchových zástěn série LUCIS LINE
TVAR
- Nadstandardní výška 2 m (běžná výška posuvných zástěn je 1,9 m)
KONSTRUKCE
- Pro vyšší tuhost zástěn byly některé díly vyrobeny z 8 mm skla (speciálně bylo potlačeno kmitání 6 mm dveří)
- Výplně jsou vyrobeny z kaleného bezpečnostního skla dle normy EN ČSN 14428 (doloženo prohlášením o shodě)
- Těsnící profily jsou zasazeny do hliníkových profilů (prodloužení životnosti těsnění oproti násuvným plastovým profilům)
DESIGN
- Tvar leštěných hliníkových profilů koresponduje s hranatým designem vaniček z litého mramoru
- Těsnící profily jsou ukryty v hliníkových profilech
- Krycí hliníková lišta stavěcích šroubů (uvnitř zástěny nejsou vidět hlavy šroubů)
- Elegantní dlouhé a štíhlé madlo z leštěné nerezové oceli (délka 340 mm)
- Zdvojená ložisková kolečka ukrytá v hranatém pouzdru
- Chromové vrchní krytky profilů
ÚDRŽBA
- ANTIDROP povrchová úprava skel pro snadné čištění (naneseno při výrobě skla)
- Snadné čištění: pouhým stlačením spodních pojezdů odklopíte posuvné dveře směrem dovnitř
- K čištění skel doporučujeme ASC čistící a ochranný prostředek, 94000
MONTÁŽ
- Zástěny jsou dodávány v částečně smontovaném stavu (skla jsou zasazena do hliníkových profilů)
- K montáži je třeba vrtačka, vodováha, šroubovák a sanitární silikonový tmel
- Pro těsnost aplikujte silikon pouze na venkovní spoj mezi hliníkový profil a vaničku
- Snadnou montáž umožňuje výsuvný stěnový profil v rozmezí 0-20 mm
Směr otevírání - univerzální
Instalace je možná s levým nebo pravým otevíráním dveří.
Antidrop
Antidrop je povrchová úprava skla pro jeho snadnou údržbu. Při výrobě skla je nanášena na jeho povrch s použitím nanotechnologie a je obsažena v ceně zástěn.
Rámové sprchové zástěny
Výhodou rámového provedení zástěny je lepší ochrana proti stříkající vodě. I v případě intenzivního sprchování zabrání rám ve spodní vodorovné části dveří přetečení vody mimo sprchový kout. Určitou nevýhodou je, že tyto zástěny nejsou bezbariérové a rám působí robustně.

Doplňkové parametry
| Kategorie: | Sprchové kouty obdélníkové |
|---|---|
| Hmotnost: | 75.04 kg |
| EAN: | 8590913900464 |
| 3D model: | ANO |
| Balení: | 2 ks |
| Barva profilu: | Chrom - Leštěný hliník |
| Hloubka: | 800 mm |
| Hmotnost: | 75.04 kg |
| Rozměr: | 120x80 cm |
| Série: | LUCIS LINE |
| Směr otevírání: | Univerzální |
| Šířka: | 1200 mm |
| Šířka vstupu: | 475 mm |
| Tloušťka skla: | 8 mm |
| Tvar: | Obdélníkové zástěny |
| Typ otevíraní: | Posuvné |
| Typ výplně: | Čiré sklo |
| Úprava skla: | Antidrop |
| Vlastnosti: | Rámové provedení |
| Výška: | 2000 mm |
| Záruční doba: | 2 roky |
| Balení - hmotnost: | 75.040 kg |
| Položka byla vyprodána… | |




