Mereo Sprchový set: LIMA, obdélník, 100x120x100x190 cm, chrom ALU, sklo Čiré vč. vaničky litý mramor CK85543KM
Kód: CK85543KMSouvisející produkty
Detailní popis produktu
Soubory ke stažení:Lima je řada sprchových koutů Mereo, která navodí pocit čistého designu v každé moderní koupelně. Rovné hladké plochy, čisté linie a ostré hrany profilů umocňují pocit exkluzivity. Kvalitní skleněné výplně s bezpečnostním sklem. Tento kout nabízíme v provedení s čirým sklem.
Snadné zavření a těsnost zajišťují stírací a silikonové lišty, opatřené na vstupní části magnetem, nejedná se však o hermeticky uzavřený výrobek.
Lehké otevírání a seřízení zabezpečují stavitelné ložiskové pojezdy (dvojkolečko). Jednoduchou údržbu a možnost vyčistit i ta nejméně přístupná místa koutu pak zajišťují spodní pojezdy s pružinovým mechanismem, pro snadné vysazení posuvné části z rámu.
Za zmínku pak jistě stojí inovativní systém montáže pomocí CLICK systému. Tento systém montáže snižuje počet operací, nutných pro sestavení celého koutu a odbourává některé složitější operace, jako je vrtání do profilů. Také další části koutu jsou dodávány s ohledem na maximální rychlost montáže svépomocí.
Výrobky v čirém provedení jsou opatřeny ochrannou vrstvou skla již při výrobě EASY CLEAN. Tato ochranná vrstva vytváří na povrchu skla neviditelný štít. Odstřikující voda je odpuzována a nemůže reagovat s povrchem skla. Tím nedochází k usazování nečistot, minerálů a nemnoží se bakterie. Proto je sklo snadno čistitelné.
Sprchové vaničky jsou podstatnou součástí sprchových koutů a svým designem a kvalitou zpracování mohou výrazně ovlivnit celkový dojem ze sprchového koutu.
Sprchové vaničky z litého mramoru jsou opatřeny ochrannou vrstvou Gelcoat, která zajišťuje stálobarevnost a odolnost proti nárazu.
Tyto sprchové vaničky, představují nadčasové a elegantní řešení:
- snadná údržba
- vysoká odolnost
- nadčasový materiál
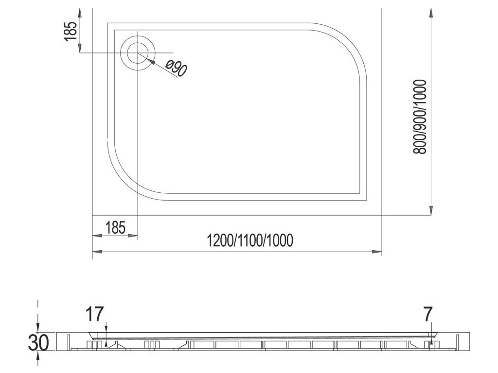
- otvor pro sifon ø 90 mm
Varianta montáže litých vaniček (nožičky a panel nejsou součástí balení):
- na nožičkách s panelem
- na nožičkách obezděná
- usazená na dlažbu
- podezděná
Doplňkové parametry
| Kategorie: | Sprchové kouty a boxy |
|---|---|
| Hmotnost: | 113 kg |
| EAN: | 8592480075170 |
| Barva: | Chrom |
| Délka: | 1900 mm |
| Hloubka: | 1000 mm |
| Hmotnost: | 113 kg |
| Konstrukce: | Pevný díl / Dveře / Pevný díl |
| Materiál: | Hliníkové profily |
| Ochranná vrstva skla: | EASY CLEAN |
| Série: | Lima |
| Stavitelnost: | 970-980 x 1170-1180 x 970-980 |
| Šířka: | 1200 mm |
| Tloušťka skla: | 6 mm |
| Tvar: | Obdélník, "U" kout |
| Typ: | L/P universální, Sprchový kout |
| Vstupní otvor: | 490 |
| Výplň: | Čiré |
| Záruční doba: | 2 roky |
| Způsob otevírání: | Zasunovací |




