Mereo WC kombi, vyvýšené, vario odpad, kapotované, Smart Flush RIMLESS, keramické vč. sedátka VSD92T1
Kód: VSD92T1Související produkty
Kohout rohový, s filtrem a růžicí, vysokou odolností a luxusním vzhledem.
Ventil rohový, s vřetenem, růžicí, vysokou odolností a luxusním vzhledem.
Nerezová připojovací hadice k přívodu teplé a studené vody 300 mm s maximálním tlakem do 10 bar a provozní teplotou max. 95 °C
Vlnovec nerezový pro vodovodní a topné systémy 400 mm s provozní teplotou max. 90 °C.
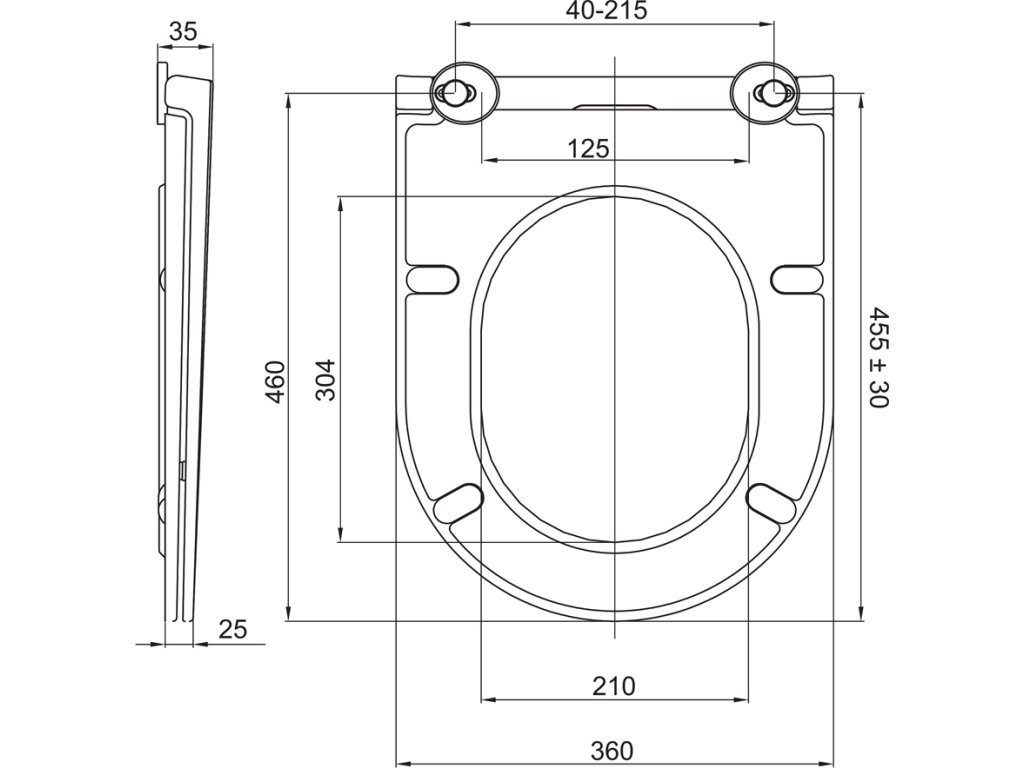
WC sedátko duroplastové SLIM, bílé, Soft-Close nerezové panty, odnímatelný systém Easy Lock
Moderní design, pohodlné řešení bidetové baterie bez nutnosti rekonstrukce.
Inovativní design pohodlné řešení bidetové baterie bez nutnosti rekonstrukce
Elegantní design pohodlné řešení bidetové baterie bez nutnosti rekonstrukce
Kvalitní testovaná a cenově přístupná série je praktické řešení pro WC
Detailní popis produktu
Soubory ke stažení:Smart flush rimless je inovativní způsob oplachu WC klozetu.
Vylepšený způsob vedení vody ve tvaru vodního víru zajišťuje účinnější oplach toalety a silnější působení vody na oplachovanou mísu. Nespornou výhodou je také výrazně tišší splachování, jelikož plynule proudící voda má sice vyšší intenzitu oplachu, ale vytváří nižší hluk než proud vody tříštící se více směry.
Klozet nemá splachovací žlábek pod okrajem mísy. Díky novému tvaru mísy tak odpadá složité čištění splachovacího žlábku, který je používaný na klasických klozetech, a kde by se mohly hromadit bakterie, špína a usazeniny. Mísu tak jednoduše očistíte.
Samozavírací WC sedátko má nerezové, nastavitelné úchyty, které je možné přizpůsobit rozměrům mísy.
Pomocí hydraulického systému víko i sedátko pomalu dopadají na mísu. Tento systém dodává pocit komfortu a zabraňuje poškození mísy i sedátka. Nerezové panty usnadňují údržbu a prodlužují životnost.
Vyvýšená konstrukce klozetu zvyšuje komfort při používání.
Vyšší posed usnadňuje usedání i vstávání, a proto je vhodný zejména pro seniory a osoby se sníženou pohyblivostí. Zároveň přináší větší pohodlí při každodenním používání pro všechny členy domácnosti.
- antibakteriální povrchová úprava
- soft close: samozavírací systém (pozvolné sklápění sedátka i víka)
- easy lock: systém umožňující jednoduchým stlačením odejmout WC sedátko od mísy (zvyšuje úroveň hygieny toalety)
Doplňkové parametry
| Kategorie: | Sanitární keramika |
|---|---|
| Hmotnost: | 30 kg |
| EAN: | 8592480128548 |
| Délka: | 880 mm |
| Hloubka: | 670 mm |
| Hmotnost: | 30 kg |
| odpad: | Vario |
| Oplach: | Smart Flush Rimless |
| Šířka: | 395 mm |
| Tvar: | Oblý |
| Typ: | WC kombi, Kombi |
| Záruční doba: | 2 roky |
WC kombi, vario odpad, kapotované, Smart Flush RIMLESS, 395x840x620mm, keramické, vč. nádržky a sedátka CSS123, spláchnutí 4/6 L.
WC kombi, vario odpad, kapotované, Smart Flush RIMLESS, 395x840x620mm, keramické, vč. nádržky a sedátka CSS126, spláchnutí 4/6 L.




